Atık su arıtma prosesinde kimyasal dozajı, su kalitesinin standartlara uygun olmasını sağlamak ve optimum arıtma sonuçlarına ulaşmak için çok önemli bir adımdır. Yeni bir ekipman türü olarak entegre dozaj cihazı, verimliliği, otomasyonu ve hassasiyeti nedeniyle atık su arıtma alanında giderek önemli bir araç haline geliyor.
Peki entegre bir dozaj cihazı atık su arıtma verimliliğini nasıl artırır?
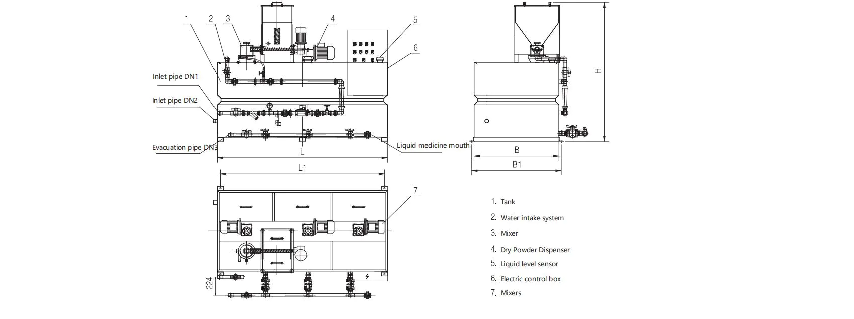
1. Nedir? Entegre Dozajlama Cihazı ?
Entegre dozaj cihazı, kimyasal depolama, taşıma, ölçüm ve kontrol gibi birden fazla işlevsel modülü birleştiren bir ekipman parçasıdır. Atıksu arıtımında kimyasal dozajlamada yaygın olarak kullanılmaktadır. Geleneksel merkezi olmayan dozaj sistemleriyle karşılaştırıldığında entegre dozaj cihazları daha kompakttır, kullanımı daha kolaydır ve otomatik kontrol sağlayabilir. Temel işlevi, eklenen kimyasalların miktarını, süresini ve konsantrasyonunu hassas bir şekilde kontrol ederek atık su arıtma prosesinde kimyasalların optimum kullanımını sağlamaktır.
2. Entegre Dozaj Cihazının Çalışma Prensibi
Entegre bir dozaj cihazının çalışma prensibi esas olarak, doğru kimyasal dağıtımını ve verimli karıştırmayı sağlayan yüksek derecede entegre fonksiyonel modüllere dayanır. Genellikle aşağıdaki ana adımları içerir:
Kimyasal Depolama ve Taşıma
Entegre dozajlama cihazı bir kimyasal depolama tankı ile donatılmıştır ve kimyasallar borular aracılığıyla otomatik olarak dozaj sistemine taşınabilmektedir. Atık su arıtma ihtiyaçlarına göre cihaz, yeterli miktarda kimyasal tedariki sağlamak için taşıma hacmini otomatik olarak ayarlayabilir.
Hassas Ölçüm ve Dozajlama
Dozaj pompaları ve akış ölçerler sayesinde entegre dozaj cihazı, eklenen kimyasalların miktarını hassas bir şekilde kontrol edebilir. Sistem, su kalitesi ve arıtma gereksinimlerine göre kimyasal dozaj oranını otomatik olarak ayarlayarak kimyasalların hassas kullanımını sağlar.
Otomatik Kontrol Sistemi
Entegre dozaj cihazı, gerçek zamanlı izleme verilerine dayanarak kimyasal dozajın miktarını ve zamanlamasını otomatik olarak ayarlayabilen akıllı bir kontrol sistemi ile donatılmıştır. Kontrol sistemi aynı zamanda optimum tedavi sonuçlarına ulaşmak için sistemi önceden belirlenmiş tedavi standartlarına göre otomatik olarak kalibre edebilir.
Gerçek Zamanlı İzleme ve Geri Bildirim
Entegre dozaj cihazının izleme sistemi, kimyasal konsantrasyon, dozaj miktarı ve akış hızı gibi temel parametreler de dahil olmak üzere kimyasal dozaj durumu hakkında gerçek zamanlı geri bildirim sağlayabilir. Bu, operatörlerin sistem durumunu zamanında anlamalarına ve anormallik durumunda müdahale etmelerine olanak tanır.
3. Atıksu Arıtma Verimliliğinin Artırılmasında Entegre Dozaj Sistemlerinin Avantajları
Kimyasal dozlamanın doğruluğu artırılarak israfın azaltılması
Entegre dozaj sistemleri, atık sudaki kirletici konsantrasyonu ve akış hızı gibi gerçek zamanlı verilere dayanarak kimyasal dozajını otomatik olarak ayarlayabilir. Bu, daha hassas kimyasal kullanımı sağlar, aşırı kullanım veya yetersiz dozajı önlerken arıtma etkinliğini garanti eder, böylece kaynak israfını ve gereksiz maliyetleri azaltır.
Otomatik kontrol, manuel müdahaleyi azaltır
Geleneksel dozaj sistemleri, insan hatasına duyarlı olan kimyasal dozajı ayarlamak için genellikle manuel çalışmaya dayanır. Entegre dozaj sistemleri, ayarlanan parametrelere göre otomatik ayarlama yapılmasına olanak tanıyan, manuel müdahaleyi ve insan hatasıyla ilişkili riskleri azaltan otomatik kontrol fonksiyonlarına sahiptir. Bu, operasyonel istikrarı artırır ve operatörlerin iş yükünü azaltır.
Gerçek zamanlı izleme ve geri bildirim, yanıt hızını artırır
Entegre dozaj sistemleri, kimyasal dozajlama işlemi sırasında çeşitli verileri gerçek zamanlı olarak izleyebilen ve dinamik ayarlamalar yapabilen akıllı izleme sistemleri ile donatılmıştır. Sistem, uzaktan kontrol ve alarm fonksiyonları sayesinde anormal durumlara hızlı bir şekilde tepki verebilir ve kimyasal dozajını zamanında ayarlayarak atık su arıtma prosesinin sürekliliğini ve stabilitesini sağlayabilir.
Optimize edilmiş kimyasal kullanımı, maliyetlerin azaltılması
Entegre dozaj sistemleri, atık su kalitesindeki değişikliklere göre kullanılan kimyasalların miktarını otomatik olarak ayarlayarak kimyasal atıkların önüne geçebilir. Hassas dozajlama sayesinde, atık su arıtma tesisinin genel operasyonel verimliliğini artırırken, kimyasal tedarik ve kullanım maliyetlerini etkili bir şekilde azaltır.
Geliştirilmiş sistem kararlılığı ve güvenilirliği
Entegre dozaj sisteminin yüksek düzeyde entegrasyonu, tüm sistemi daha kompakt hale getirerek geleneksel sistemlerdeki bileşenler arasındaki bağlantı sorunlarını azaltır ve sistem arızası olasılığını azaltır. Ekipmanın yüksek güvenilirliği, atık su arıtma prosesi boyunca kimyasal dozajının sabit kalmasını sağlayarak ekipman arızalarını ve arıza sürelerini azaltır.
4. Atıksu Arıtımında Entegre Dozaj Sistemlerinin Uygulamaları
Entegre dozaj sistemleri, çeşitli atık su arıtma tesislerinde, özellikle kimyasal dozajın hassas kontrolünü gerektiren durumlarda yaygın olarak kullanılmaktadır. Özel uygulama senaryoları şunları içerir:
Belediye atık su arıtma
Belediye atıksu arıtımı genellikle kararlı ve hassas kimyasal dozajı gerektiren büyük ölçekli su arıtımını içerir. Entegre dozaj sistemleri, gerçek zamanlı su kalitesi verilerine dayalı olarak kimyasal dozajını ayarlayarak, kimyasal atıklardan kaçınırken su kalitesinin deşarj standartlarını karşılamasını sağlar. Endüstriyel Atıksu Arıtma
Endüstriyel atık su genellikle çeşitli toksik ve zararlı maddeler içerir, bu da kimyasal dozajın doğruluğunu çok önemli hale getirir. Entegre dozaj sistemleri, eklenen kimyasalların miktarını hassas bir şekilde ayarlayarak karmaşık atık su bileşenlerinin arıtılmasına yardımcı olur ve nihai tahliye edilen su kalitesinin çevresel gereksinimleri karşılamasını sağlar.
Su Arıtma Tesisi Dezenfeksiyonu
İçme suyu tesislerinin dezenfeksiyon işleminde entegre dozaj sistemleri, eklenen dezenfektan miktarını su akışına ve su kalitesine göre gerçek zamanlı olarak ayarlayarak su kaynağının güvenliğini ve hijyenini sağlar.
Su Arıtma
Su arıtma işleminde eklenen kimyasalların miktarı ve oranı, arıtma etkisi açısından çok önemlidir. Entegre dozaj sistemleri, kimyasal dozajını hassas bir şekilde kontrol ederek su kalitesinin standartlara uygun olmasını sağlayabilir ve operatörlerin iş yükünü azaltabilir.
Atık su arıtımında önemli bir ekipman parçası olan entegre dozaj sistemleri, otomatik kontrol, hassas dozaj ve gerçek zamanlı izleme yoluyla atık su arıtımının verimliliğini ve stabilitesini artırır. Yalnızca kimyasal atık ve işletme maliyetlerini azaltmakla kalmıyor, aynı zamanda sistem güvenilirliğini artırıyor ve su kalitesi arıtmasının standartlara uygun olmasını sağlıyor.

















